24
$375,000 Sale
Listed 16 hours ago
1505 27 Avenue SW, #102
· 2
· 2
· 2
· 1091.44
Key Facts
Key facts for 1505 27 Avenue SW, #102
Property Type
Apartment, Apartment-Multi Level Unit
Parking
Parkade,Underground , Parkade,Underground 2 parking
MLS #
A2267497
Size
1091.44 sqft
Basement
None
Listed on
-
Lot size
-
Days on Market
-
Year Built
1999
Maintenance Fee
$868.62/mo
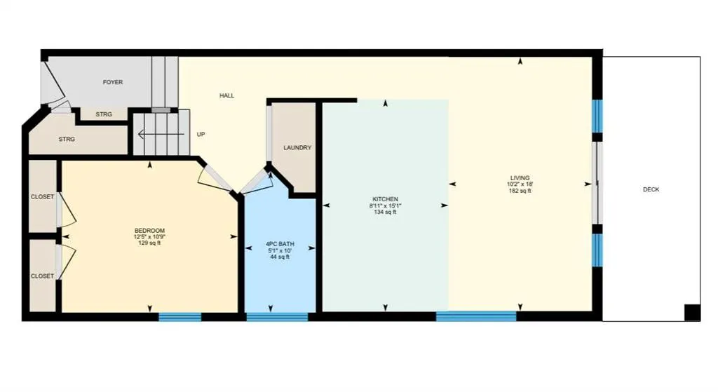
Description
This bright and airy 2-bedroom, 2-bath loft-style condo offers over 1,000 sq. ft. of modern, open-concept living in one of Calgary’s most desirable inner-city neighbourhoods. The south facing corner unit is bathed in natural light thanks to its soaring ceilings and dramatic wall of windows, creating... a space that feels both spacious and inviting. The main level features a stylish kitchen with granite countertops, rich maple cabinetry, and stainless steel appliances perfect for cooking, entertaining, or casual nights in. The open living and dining area flows effortlessly to a sunny private patio, ideal for morning coffee or evening gatherings. Upstairs, the lofted primary suite is a true retreat with a full ensuite bath and generous closet space. A second bedroom and full bath on the main level add versatility ideal for guests, a home office, or a roommate setup. Additional perks include in-floor heating throughout, two titled underground parking stalls, a separate storage locker, and in-suite laundry. Located in vibrant South Calgary, you’re steps from 17th Avenue or Marda Loop’s trendy shops, restaurants, cafés, parks, and transit everything you need for connected, urban living.
Similar Properties (No results)
Room Types
4pc Bathroom
10`0" x 5`1"
Dimensions -
0 sqft
Bedroom
10`9" x 12`5"
Dimensions -
0 sqft
Kitchen
15`1" x 8`11"
Dimensions -
0 sqft
Courtesy of: RE/MAX First
Copyright Pillar 9™. All rights reserved. Information is deemed reliable but not guaranteed.